De gemeente Someren biedt het vrijstaande pand aan de Offermansstraat 9a in Lierop te huur aan. Het gaat hierbij om het voormalige kinderopvanggebouw in het dorpshart van Lierop.
Over het pand
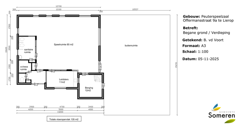
- Vrijstaand gebouw met een gebruiksoppervlak van ca. 135 m2
- Perceel met ca. 160 m2 buitenruimte
- Centrale ligging in het parkgebied, nabij de basisschool ’t Rendal en de gymzaal
- Parkeren kan in de direct omgeving (geen parkeerruimte op eigen perceel)
- Huurprijs: € 11.000,- per jaar
Procedure
Geïnteresseerden dienen bij hun aanvraag kenbaar te maken wat hun plannen zijn met het pand. Op basis van de ingediende plannen selecteert de gemeente partijen voor een vervolggesprek.
Selectiecriteria:
- De kwaliteit en de haalbaarheid van het plan voor het gebruik van het pand
- Bereidheid om te investeren in onderhoud en/of uitbreiding
- De bereidheid tot een duurzame, langdurige huurrelatie
- De mate waarin het plan aansluit bij de maatschappelijke behoefte van Lierop
De gemeente behoudt zich het recht voor om af te zien van verhuur.
Gewenste invulling
De gemeente Someren geeft de voorkeur aan een maatschappelijke invulling van deze locatie. In Lierop bestaat momenteel een duidelijke behoefte aan een huisartspraktijk of een vergelijkbare voorziening. Deze behoefte speelt een belangrijke rol bij de selectie, al worden andere passende maatschappelijke functies niet uitgesloten.
Interesse?
Stuur uw voorstel, inclusief een korte beschrijving van het voorgenomen gebruik en uw contactgegevens, vóór 31 januari naar: gemeente@someren.nl
